
Expertise Detail
Bridges and Tunnels

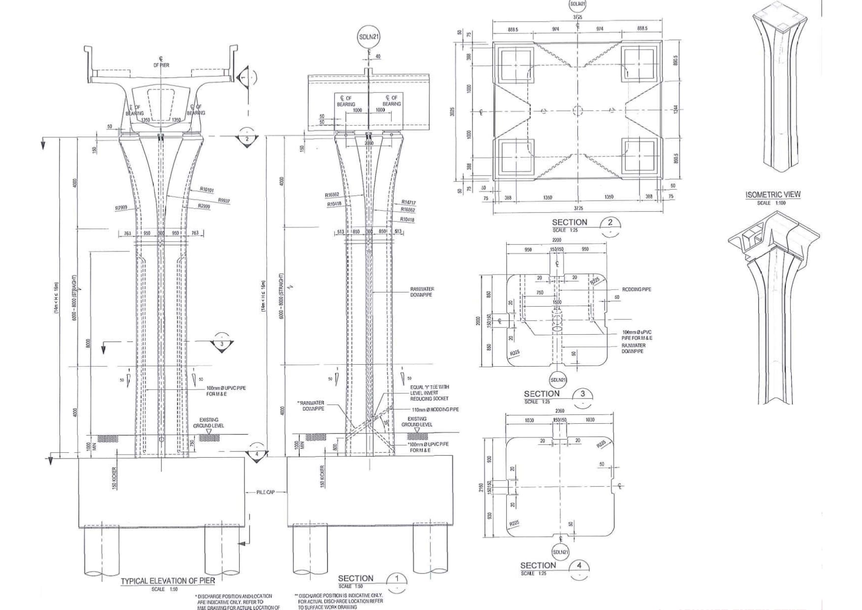
Our bridge engineering service covers concept development, detailed design, structural analysis, and construction-stage technical support. We design durable and efficient bridge systems for urban, highway, and regional corridors while balancing safety, cost, and long-term maintainability.
Key Capabilities
- Preliminary and detailed bridge design
- Load rating and structural assessment
- Construction supervision support